- Vara kommun
- Bygga, miljö och infrastruktur
- Bygga nytt, ändra eller riva
- Ritningar och andra handlingar
Ritningar och andra handlingar
På denna sida beskriver vi olika typer av ritningar och handlingar som kan behövas i samband med ansökningar och anmälningspliktiga åtgärder.
Nya byggregler från 1 juli
Observera att nya byggregler gäller från den 1 juli 2025. Det du läser på just den här sidan är de nuvarande och gäller till och med den 30 juni 2026 parallellt med de nya.
När du ansöker om lov eller gör en anmälan är det viktigt att du lämnar rätt handlingar tillsammans med din ansökan eller anmälan. Vilka handlingar du ska bifoga beror på vad du tänker bygga.
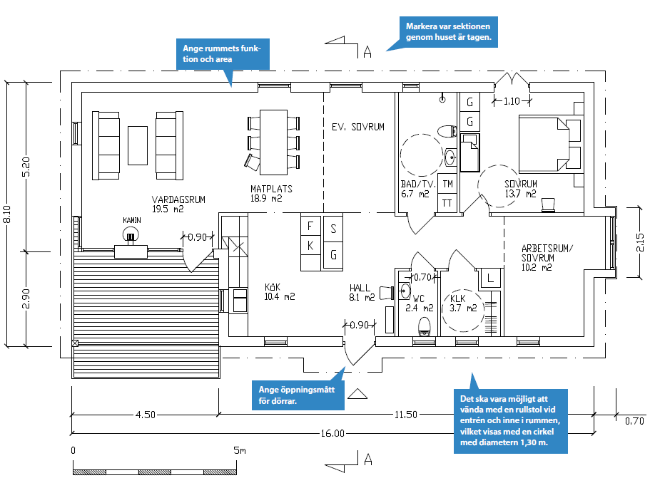
Fackmannamässiga ritningar
Det är viktigt att alla ritningar som skickas in är fackmannamässigt gjorda. Det innebär att de ska vara ritade på vitt olinjerat papper med rena svarta linjer, att alla mått ska vara korrekta och att skalan finns med. Måtten ska vara i meter med en decimals noggrannhet.
Det här ska finnas med på ritningarna:
- Information om vad som finns på ritningen
- Fastighetsbeteckning
- Skala
- Ett ritningsnummer som du själv betämmer, till exempel "Ritning 1"
- Datum så att olika versioner kan skiljas från varandra
Vad kan jag göra själv?
När det gäller enklare ritningar kan du i vissa fall göra dem själv, men i många fall är det bättre att ta hjälp av en expert, till exempel en arkitekt. Om ritningarna inte uppfyller de krav som ställs förlängs handläggningstiden eftersom vi då kommer att be dig skicka in nya ritningar som uppfyller kraven.
Kontaktcenter
Vi svarar på frågor om kommunens service och verksamhet, ring eller skicka e-post till kontaktcenter.




